- トップページ
- 福生市志茂 新築分譲住宅 全1棟





・青梅線「牛浜」駅から徒歩6分。新宿へも直通アクセス・お荷物多くなっても安心の各居室収納・雨の日や花粉の時期も安心の浴室乾燥機
担当スタッフより

- 渡辺 光
- ~ファミリアホームの強み~
<ベテランスタッフ!>不動産業界10年経験のベテランスタッフ対応可!福生市はお任せ下さい。
<提携FPへ無料相談!>お気軽にご相談下さい。(要ご予約)
<キッズスペース完備!>任天堂Switchやアニメ、絵本、おもちゃなどをお子様専用スペースでお楽しみいただけます。
<弊社専属税理士に相談可能!>相続税や各種税金申請のご相談頂けます。
<内覧時ご自宅送迎!>ご来店・ご内見の際に、弊社社員がご指定場所まで無料送迎させていただきます。ご指定場所はご自宅に限らず、勤務先からアクセスしやすい駅の近くなども可能です。
※送迎地域は担当スタッフまでご相談下さい。
納得のいく住まい探しのお手伝いをさせて頂きます。
営業時間:9:00-18:00(水曜定休)※時間外のご相談も承っております。(要ご予約)
物件詳細情報
物件No.20000427686
| 所在地 | 東京都福生市志茂47-7 | ||
|---|---|---|---|
| 交通 | 青梅線「牛浜」駅徒歩6分 青梅線「福生」駅徒歩10分 五日市線「熊川」駅徒歩14分 |
||
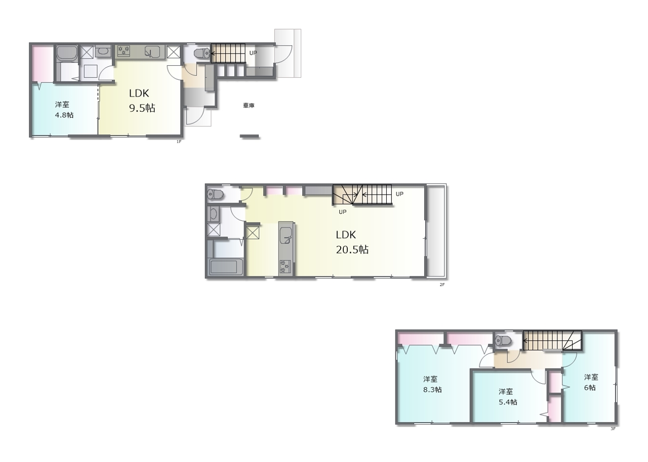
| 間取 | 3LDK+1LDK | ||
| 土地面積 | 83.13m² 公簿 | ||
| 建物面積 | 138.22m² 公簿 | ||
| 販売戸数 | 1戸 | 総戸数 | 全1戸 |
| 構造・規模 | 木造 3階建て | 築年・入居 | 2026年1月下旬 |
| バルコニー | 南向き | 建物現況 | 建築中 |
| 建築確認番号 | 第AII建築確認00-2500183号 | 駐車スペース | 1台(カースペース) |
| 引渡時期 | 期日指定有(2026年1月下旬) | 国土法届出 | 不要 |
| 地目 | 宅地 | 用途地域 | 近隣商業地域 |
| 建ぺい率 | 90% | 容積率 | 300% |
| 都市計画 | 市街化区域 | 権利種類 | 所有権 |
| 接道 | 北東側6M公道に接道 | 小学校区 | 福生第三小学校(610m) |
| 中学校区 | 福生第一中学校(990m) | 取引態様 | 媒介 |
| 設備 | 公営水道・本下水・東京電力・都市ガス |
||
| その他制限事項 | 景観法、航空法、宅地造成工事規制区域、高度地区、準防火地域、日影制限有 | ||
こだわり項目
整形地緑豊かな住宅地閑静な住宅地地盤調査済LDK15帖以上2世帯住宅全居室収納複層ガラス浄水器省エネ給湯器ガスコンロシステムキッチンカウンターキッチン3口以上コンロパントリー(食器・食品の収納庫)トイレ2ヶ所温水洗浄便座シャワー付洗面台浴室乾燥機浴室暖房追焚機能浴室1坪以上浴室に窓全居室フローリングリビング階段TVモニタ付インターホン小学校800m以内保育園・幼稚園800m以内スーパー400m以内公園800m以内陽当り良好通風良好コンビニ400m以内
- ※価格は物件の代金総額を表示しており、消費税が課税される場合は税込み価格です。(1,000円未満は切り上げ。)
税率は引き渡し時期により異なりますので、各物件の詳細につきましてはお問い合わせください。 - ※敷地権利が借地権のものは価格に権利金を含みます。
- ※制作中に内容が変更される場合もありますので、あらかじめご了承ください。
- ※購入の前には物件内容や契約条件についてご自身で十分な確認をしていただくようにお願いいたします。
- ※完成予想図はいずれも外構、植栽、外観等実際のものとは多少異なることがあります。
- ※CG合成の画像の場合、実際とは多少異なる場合があります。
周辺地図
周辺施設一覧
- ショッピングセンター
- スーパー
- コンビニ
- ドラッグストア
- ホームセンター
- 飲食店
- その他店舗
- 商店街
- 大学
- 専門学校
- 高校・高専
- 中学校
- 小学校
- 保育園
- 幼稚園
- 公民館・児童館
- 病院
- 郵便局
- 役所
- 図書館
- 金融機関
- 警察・消防
- 趣味・娯楽施設
- 公園・運動施設
- 周辺の街並み
- 駅
- その他
お問い合せ先
- 株式会社Familiar Home(ファミリアホーム)
- お電話でのお問い合わせは
0120-915-476「ホームページを見た」とお問い合わせください - 東京都昭島市松原町1-27-1 田中ビル
- 営業時間:9:00〜18:00
- 定休日:水曜日
- 免許番号:宅建業免許 東京都知事(1)第105606号
- トップページ
- 福生市志茂 新築分譲住宅 全1棟






